本文へスキップ

甲陽不動産は山梨県北杜市で八ヶ岳南麓を中心に土地・建物の仲介をしています

お電話でのお問い合わせはTEL.0551-38-1562

メールでのお問合せはこちら

物件No:B22335


甲斐大泉駅やパノラマの湯から徒歩圏内。人気のエリアで別荘や移住者の多い静かな環境。
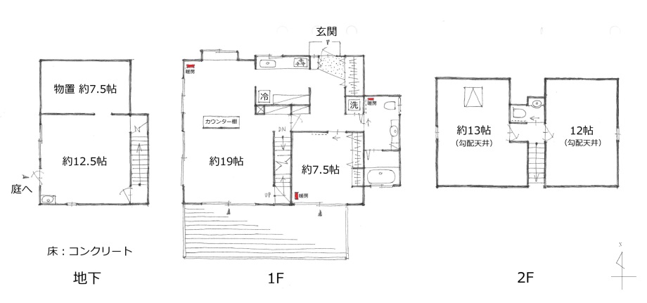
建物は地元の信頼ある「オルケア株式会社」様。間取りはゆったりとした3SLDKで室内も明るく、定住も可能です。勾配のある地形を活かして建てられており、リビングは道路より高く、デッキで過ごしても通行人の目線が気にならずプライベート感あり。地下にあたるお部屋はアトリエとして造られましたが、様々な仕事場や倉庫としても利用可能。
敷地の北側は北杜市所有の緑地帯のような状況で樹々の景色が素敵な雰囲気。
環境も建物も様々な方の目的に合いやすく、別荘・定住いずれにおいても人気のある条件が揃っています。

▼以下、修繕が必要な箇所がありますが、現状有姿渡し・買主様ご負担にて修理が必要となりますので何卒ご了承ください。
修繕箇所:ウッドデッキ、地下室の水道、地下室の湯沸かし器、外壁一部剥がれあり。
※詳細画像はページ下にございます
 価格 3,500万円  所在地 北杜市大泉町西井出
 標高 1,110m 最寄駅 JR小海線・甲斐大泉駅より約700m(徒歩約9分)
土地面積 528u/約160坪 インター 中央自動車道・長坂ICより約7.6km(車で約13分)
建物面積 (1F)74.9u/22.7坪
(2F)49.3u/14.9坪
(地下)37u/11坪
(計)161u/約49坪
建築年月 平成18年(2006)3月築
構造 木造合金メッキ鋼板葺3階建
駐車 約3台 間取 3SLDK
取引形態 仲介 道路 西側公道に接する
引渡時期 即可能 周辺環境 別荘、定住、林など
現状 空き家 暖房 1F灯油式温水ヒーター、他は置き型ストーブ
建ぺい率 40% 電気 東京電力他
容積率 100% 水道 公営水道
都市計画 区域外 排水 合併浄化槽
区域区分 森林共生区域 給湯 灯油式
権利 所有権 キッチン プロパンガス
地目 山林 土砂災害 非該当
陽当り 優良 ごみ捨て 地区加入しゴミステーション利用可orゴミ処理業者へ持込みor別荘の場合は持ち帰り、等
地形 西向き傾斜 学区 泉小学校・泉中学校
修繕履歴 (2022年実施)ビルトインキッチンコンロ入れ替え工事、温水ヒーターの室内機2台交換(リビングと洋室7.5帖)、玄関ドア交換、外水道修理 など。
その他 ▼以下、修繕が必要な箇所がありますが、現状有姿渡し・買主様ご負担にて修理が必要となりますので何卒ご了承ください。
修繕箇所:ウッドデッキ、地下室の水道、地下室の湯沸かし器、外壁一部剥がれあり。
アクセス ひまわり市場まで車で約10分
泉小学校まで車で約10分
小淵沢駅まで車で約20分

 付随費用   →費用についての詳細はこちら  配置図(クリックすると拡大します)
 仲介手数料(税込) 1,221,000円
 収入印紙代(契約書貼付用) 10,000円
 所有権移転登記費用
融資利用の方は別途抵当権設定費用等あり
見積り要
 管理費 確認中
 固定資産税
引渡し日に応じて日割り計算
(確認中)円/年

間取図(クリックすると拡大します)

※画像をクリックすると拡大します
ウッドデッキウッドデッキ1F洋室2F廊下2F洋室(西)2F洋室(西)2F洋室(東)地下地下地下2Fトイレ
図面と現況が異なる場合は現況を優先させて頂きます

shop info店舗情報

甲陽不動産


〒409-1501
山梨県北杜市大泉町西井出3386-3
TEL.0551-38-1562
FAX.0551-38-1563